案例介绍
北京市 - 怀柔区
融城园北区6号楼1-501
时尚简约
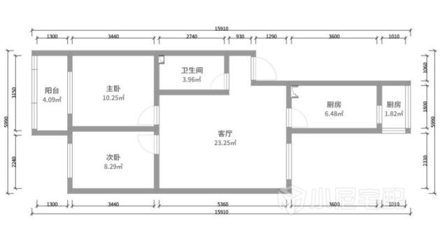
户型图









免费申请设计
设计师上门服务全程免费,禁止以任何形式收取费用。