案例介绍
北京市 - 顺义区
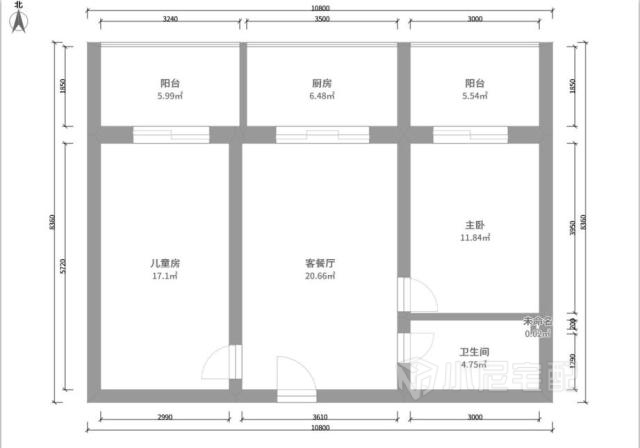
部队家属院
户型图













免费申请设计
设计师上门服务全程免费,禁止以任何形式收取费用。