德国工业4.0智造

  • 健康环保
  • 免费服务
  • 三年质保
  • 本地体验
首页 > 案例中心 > 欧式 > 欧陆风情

欧陆风情 2704

136㎡#三室两厅两卫#欧式

案例介绍
内蒙古自治区 - 乌兰察布市 - 集宁区 警苑


                       

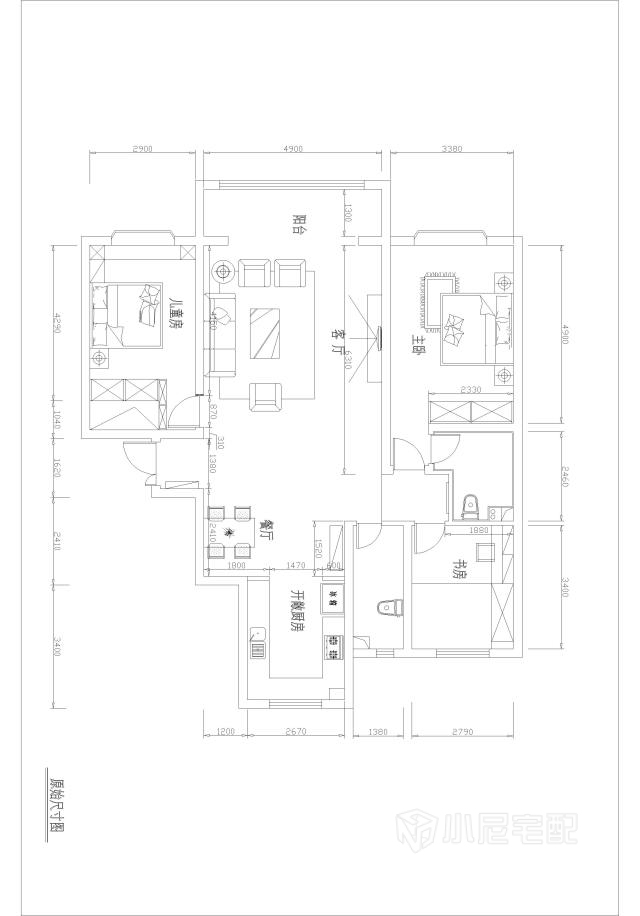
户型图

门厅
客厅
客厅
餐厅
卧室
卧室
次卧
卫生间
厨房
1274
内蒙古自治区-乌兰察布市
设计经验10 作品5
  • 中式
  • 混搭
  • 东南亚
  • 硬装设计
  • 软装配饰设计

免费申请设计

设计师上门服务全程免费,禁止以任何形式收取费用。

请输入验证码

验证码输入错误