德国工业4.0智造

  • 健康环保
  • 免费服务
  • 三年质保
  • 本地体验
首页 > 案例中心 > 现代 > 新白领

新白领 2473

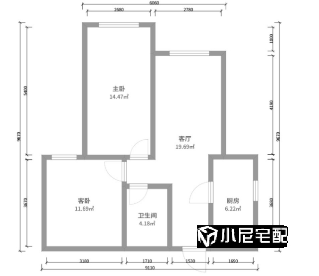
75㎡#两室一厅一卫#现代

案例介绍
北京市 - 怀柔区 胜悦居


                       

户型图


                               

                               

                               

                               

                               

                               

                               

                               
北京市-怀柔区
设计经验10 作品16
  • 现代
  • 简约
  • 混搭
  • 硬装设计
  • 软装配饰设计
  • 施工监督

免费申请设计

设计师上门服务全程免费,禁止以任何形式收取费用。

请输入验证码

验证码输入错误