案例介绍
山东省 - 烟台市 - 龙口市
天鸿
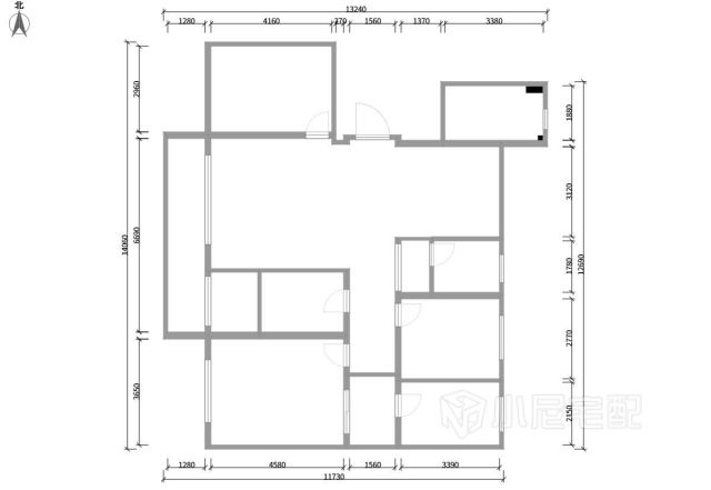
户型图

厨房1

厨房2

主卧室

女儿房

榻榻米

阳台

衣帽间

卫生间
免费申请设计
设计师上门服务全程免费,禁止以任何形式收取费用。