德国工业4.0智造

  • 健康环保
  • 免费服务
  • 三年质保
  • 本地体验
首页 > 案例中心 > 现代 > 北欧风情

北欧风情 1643

90㎡#两室两厅一卫#现代

案例介绍
河北省 - 廊坊市 - 三河市 市医院家属楼


                       

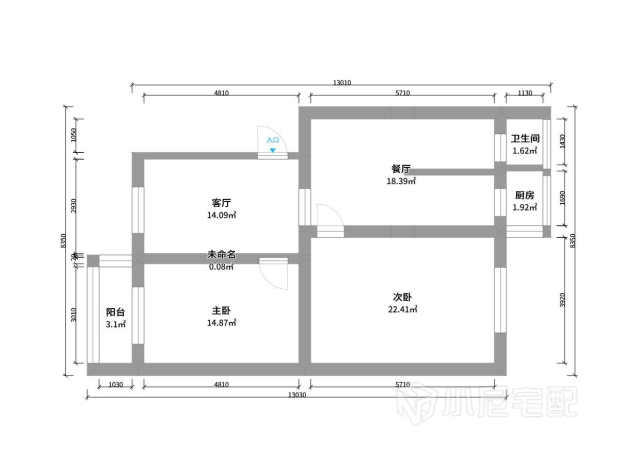
户型图

客厅空间较小,所以采用原木色小茶几配灰色双排沙发,一切显得简洁干练
餐厅用酒柜及推拉门巧妙把卫生间门和厨房门隐藏起来,使整个餐厅成为一体
主卧室进门处放个圆角衣柜,进门显得舒适,配合原木色床套整个屋子一切简洁为主
主卧室进门处放个圆角衣柜,进门显得舒适,配合原木色床套整个屋子一切简洁为主
次卧室空间较大,放置转角衣柜配合原木色床,使空间显得紧凑而又不拥挤
次卧室空间较大,放置转角衣柜配合原木色床,使空间显得紧凑而又不拥挤,窗台边放个休闲椅,尽享午后阳光
厨房白色墙砖配合白色吸塑橱柜,干净,清新
卫生间选择暖色墙砖,让人在淋浴中不显得那么冷。
658
设计经验1 作品3

免费申请设计

设计师上门服务全程免费,禁止以任何形式收取费用。

请输入验证码

验证码输入错误