案例介绍
                             
                               河北省 - 廊坊市 - 大厂回族自治县
                                                              福康馨苑
                                                            
                           
                           
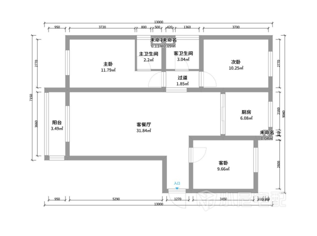
                       户型图
                                   
                               
 
                                                                     门厅定制鞋柜,有效遮挡分水器白色干净利落与旁边防盗门的深红色相呼应
 
                                                                     客厅定制白色简欧电视柜,配合蓝色背景墙与蓝白相间窗帘创造出一种清晰自然的感觉
 
                                                                     白色配套餐桌加上绿色植物花瓶点缀,墙面暖色装饰画让人食欲大增
 
                                                                     主卧白色四门柜配合翻转妆台,一切都以简洁为主
 
                                                                     次卧淡蓝色窗帘配合白色精品床饰,一切都以简洁为主
 
                                                                     儿童房棕色床饰,配合黄黑相间窗帘,整个卧室立即活泼起来
 
                                                                     厨房一切都以白色为主,显得干净整洁
 
                                                                     主卫生间暖色墙砖铺设,暖意融融
 
                                                                     次卫生间暖色墙砖铺设,暖意融融
免费申请设计
设计师上门服务全程免费,禁止以任何形式收取费用。
 
                         
                         
                         
                         
                         
                             
                                   