德国工业4.0智造

  • 健康环保
  • 免费服务
  • 三年质保
  • 本地体验
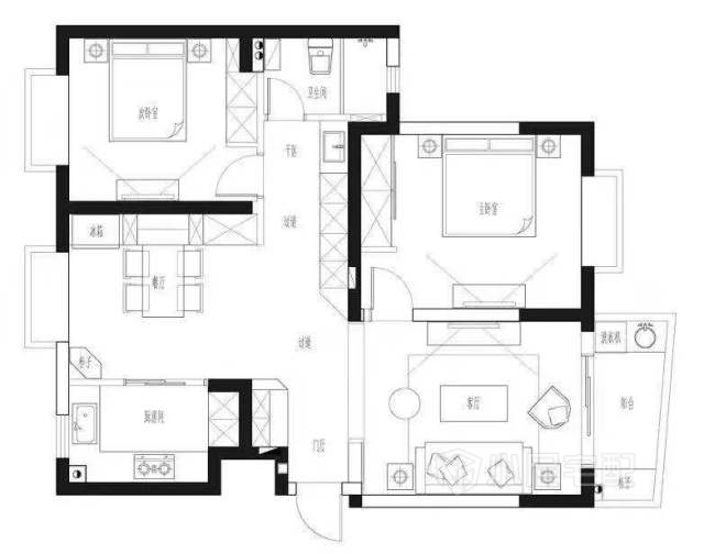
首页 > 案例中心 > 简约 > 青葱岁月

青葱岁月 2005

105㎡#两室两厅一卫#简约

案例介绍
北京市 梦想家园

整个空间在色系上选择灰蓝色与白色作为背景色,棕与会为主体,蓝黄作为辅助,适当的金色稍加点缀,定格为简约北欧风

户型图


                               

                               

                               

                               

                               

                               

                               

                               
设计经验1 作品2

免费申请设计

设计师上门服务全程免费,禁止以任何形式收取费用。

请输入验证码

验证码输入错误