案例介绍
                             
                               内蒙古自治区 - 乌兰察布市 - 集宁区
                                                              山水文园
                                                            
                           
                           
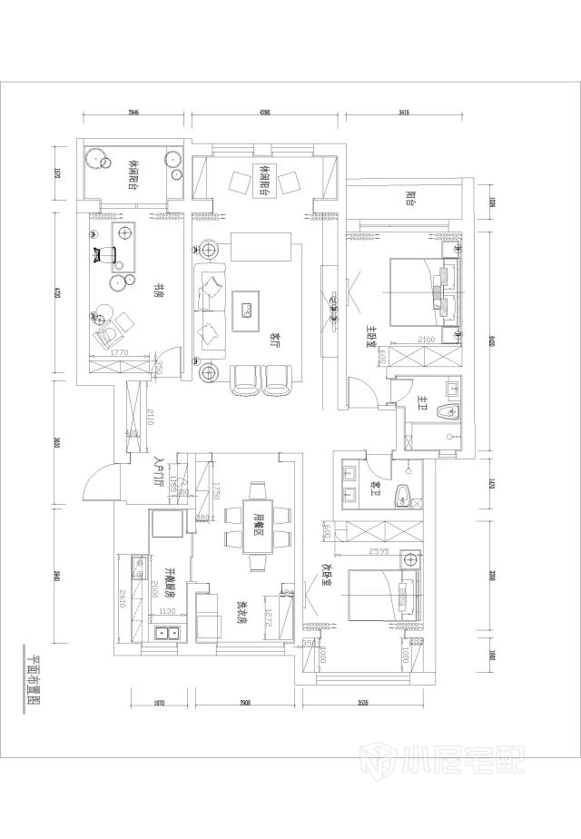
                       户型图
                                   
                               
 
                                                                     门厅
 
                                                                     过道
 
                                                                     客厅
 
                                                                     餐厅
 
                                                                     主卧室
 
                                                                     次卧
 
                                                                     书房
 
                                                                     厨房
免费申请设计
设计师上门服务全程免费,禁止以任何形式收取费用。
 
                         
                         
                         
                         
                         
                             
                                   