德国工业4.0智造

  • 健康环保
  • 免费服务
  • 三年质保
  • 本地体验
首页 > 案例中心 > 现代 > 卡卡卡卡

卡卡卡卡 2730

88㎡#两室一厅一卫#现代

案例介绍
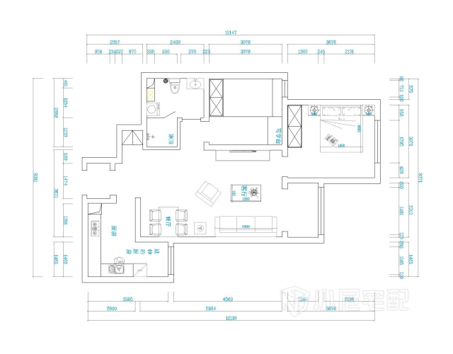
河北省 - 唐山市 - 路北区 恒泰悦季


                       

户型图

进门写字台满足男业主的需求
客厅整个以果绿色来提亮
客厅面积不大,整体简洁
餐厅采用卡座的形式
厨房橱柜采用撞色的颜色
卫生间弧形淋浴房节省空间
原木色的浴室柜搭配黑白砖
卧室整体灰色相呼应亮黄色点缀
1418
河北省-唐山市
设计经验3 作品4
  • 现代
  • 软装配饰设计

免费申请设计

设计师上门服务全程免费,禁止以任何形式收取费用。

请输入验证码

验证码输入错误