德国工业4.0智造

  • 健康环保
  • 免费服务
  • 三年质保
  • 本地体验
首页 > 案例中心 > 中式 > 新中平层案例

新中平层案例 2911

120㎡#两室一厅一卫#中式

案例介绍
内蒙古自治区 - 巴彦淖尔市 - 临河区 奥林国际

  (⊙﹏⊙)(⊙﹏⊙)(⊙﹏⊙)(⊙﹏⊙)(⊙﹏⊙)(⊙﹏⊙)

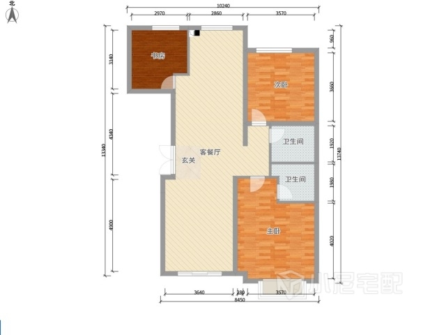
户型图

客厅
鞋柜
主卧衣柜
主卧
主卧妆台
次卧
餐厅酒柜.
厨房1
厨房2
内蒙古自治区-巴彦淖尔市
设计经验1 作品10
  • 现代
  • 硬装设计

免费申请设计

设计师上门服务全程免费,禁止以任何形式收取费用。

请输入验证码

验证码输入错误