德国工业4.0智造

  • 健康环保
  • 免费服务
  • 三年质保
  • 本地体验
首页 > 案例中心 > 现代 > 温暖阳光

温暖阳光 3983

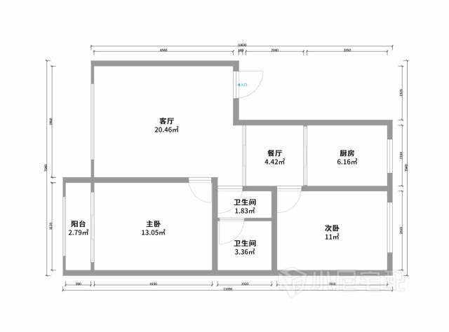
64.64㎡#两室两厅一卫#现代

案例介绍
内蒙古自治区 - 赤峰市 - 阿鲁科尔沁旗 西河新村

家是一个感情的港湾,家是一个灵魂的栖息地,家是一个精神的乐园。家就是你和你家人在一起的情感的全部 所以要舒适 温馨 温暖

户型图


                               

                               

                               

                               

                               

                               

                               

                               
内蒙古自治区-赤峰市
设计经验1 作品5
  • 现代
  • 简约
  • 混搭
  • 硬装设计
  • 软装配饰设计

免费申请设计

设计师上门服务全程免费,禁止以任何形式收取费用。

请输入验证码

验证码输入错误