案例介绍
江苏省 - 苏州市 - 吴中区
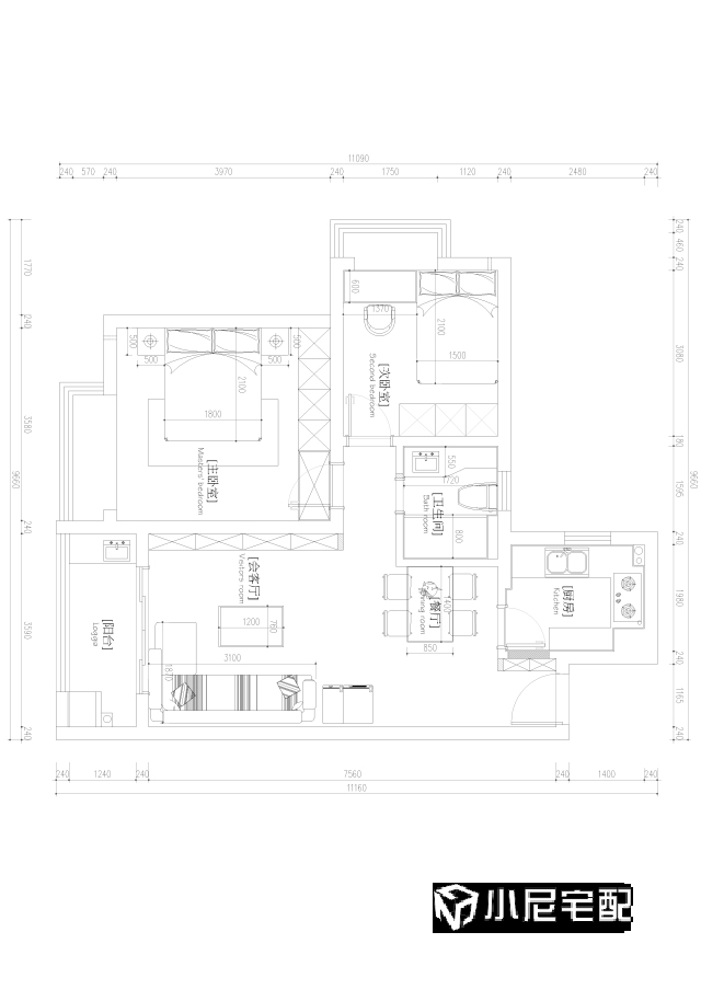
锦溪苑
户型图









免费申请设计
设计师上门服务全程免费,禁止以任何形式收取费用。