德国工业4.0智造

  • 健康环保
  • 免费服务
  • 三年质保
  • 本地体验
首页 > 案例中心 > 简约 > 北欧印象

北欧印象 2936

70㎡#两室一厅一卫#简约

案例介绍
北京市 - 朝阳区 首开国悦居

一对年轻夫妇简装自住,倾向北欧风格,按照客户要求空间合理规划。

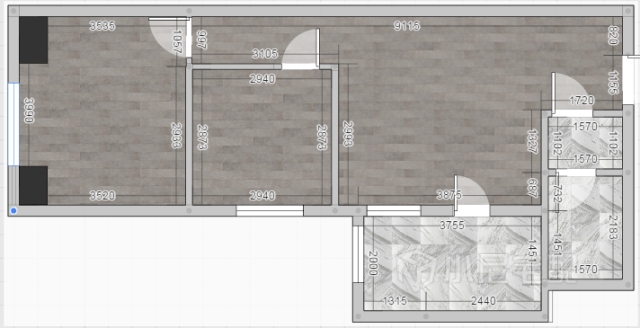
户型图

客餐厅  黄色三人位沙发 让空间更加丰富多彩
门厅 鞋柜与储物柜结为一体 满足更多储物功能
餐厅 一米二的餐桌虽然紧凑,但不影响使用。
主卧飘窗出合理规划办公桌,满足客户需求
次卧 按照客户要求格子纹路床头 通顶衣柜
厨房 让无处安放的冰箱有了属于自己的位置
厨房将原有洗衣房与厨房合并,最大化实用空间。
卫生间 布满几何图形的墙砖让卫生间不再单调。
修改后的户型更加合理
北京市-朝阳区
设计经验8 作品5
  • 现代
  • 中式
  • 简约
  • 硬装设计
  • 软装配饰设计
  • 产品陪购
  • 施工监督

免费申请设计

设计师上门服务全程免费,禁止以任何形式收取费用。

请输入验证码

验证码输入错误