德国工业4.0智造

  • 健康环保
  • 免费服务
  • 三年质保
  • 本地体验
首页 > 案例中心 > 现代 > 现代灰

现代灰 2304

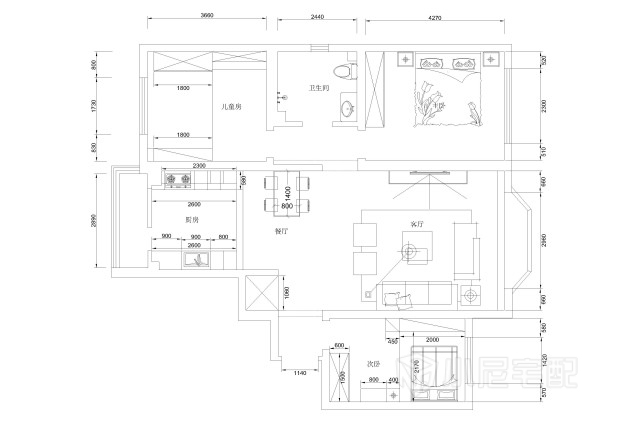
110㎡#三室两厅一卫#现代

案例介绍
内蒙古自治区 - 乌兰察布市 - 集宁区 滨河小区


                       

户型图


                               

                               

                               

                               

                               

                               

                               

                               

                               

                               
内蒙古自治区-乌兰察布市
设计经验5 作品9
  • 现代
  • 中式
  • 田园
  • 硬装设计
  • 软装配饰设计
  • 施工监督

免费申请设计

设计师上门服务全程免费,禁止以任何形式收取费用。

请输入验证码

验证码输入错误