案例介绍
河北省 - 秦皇岛市 - 市辖区
秦皇岛
设计风格偏北欧,色彩搭配明快舒适,暗绿色和明黄色的搭配有耳目一新的感觉,同时也提升了空间的层次感
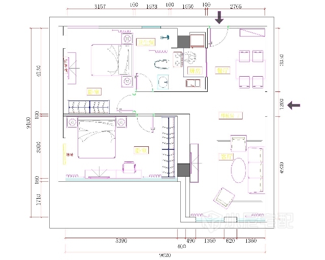
户型图

单面墙滚涂绿色,既提升了客厅的层次感,又添加了一抹生机

色彩明亮的定制家具,利用明黄色为套色,充分利用空间,增加了储物功能

曲线优美的沙发,在工作闲暇之余,不失为一个休憩的好场所

餐厅的空间不是很大,利用照片墙作为装饰,更有活跃感

卧室的书桌使用功能强大,能够充分满足工作的需求

没有多余的装饰,空间层次已然很强

利用定制家具的特色,为主人家创造更多的可合理利用的空间

小卧室显然与整个空间也很搭,色彩的搭配显得尤为舒适

小卧室的一角,穿衣镜的搭配提升的卧室的温馨感
免费申请设计
设计师上门服务全程免费,禁止以任何形式收取费用。