德国工业4.0智造

  • 健康环保
  • 免费服务
  • 三年质保
  • 本地体验
首页 > 案例中心 > 简约 > 温馨蜗居

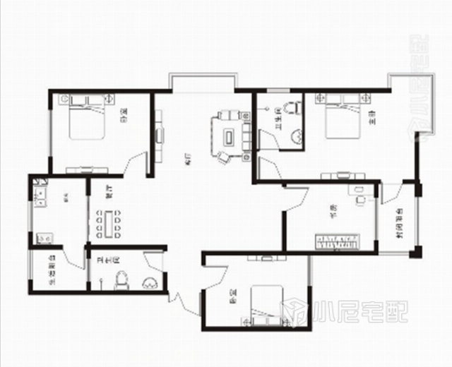
温馨蜗居 3797

134㎡#三室两厅两卫#简约

案例介绍
山东省 - 日照市 - 市辖区 裕生华庭

与窗外的车水马龙的喧嚣相比,温馨、安静的家是感情生活的暖巢也是修养身心的港湾,生活节奏一下子舒缓了下来。轻松、现代的设计风格,在这里停留的每一刻都是一种享受。

户型图

最大化的保证了空间的通透性,宽大的窗户为室内带来了新鲜的空气和充足的阳光。
线条增加了空间的流动性。
虚实结合,灵动的美。
充分利用空间。
工作的压力、内心的烦闷在围拢的空间内得到释放。
大大的窗,可以把看到的美景引入心灵。
干湿分离,洗手台边柜增加了收纳空间。
实用、整洁、错落又富有变化。
山东省-日照市
设计经验7 作品3
  • 现代
  • 中式
  • 欧式
  • 硬装设计
  • 软装配饰设计
  • 产品陪购
  • 施工监督

免费申请设计

设计师上门服务全程免费,禁止以任何形式收取费用。

请输入验证码

验证码输入错误