德国工业4.0智造

  • 健康环保
  • 免费服务
  • 三年质保
  • 本地体验
首页 > 案例中心 > 欧式 > 守住时间

守住时间 3699

124㎡#三室两厅两卫#欧式

案例介绍
山东省 - 德州市 - 德城区 唐人中心

白色的简洁朴素、加上黑色的高雅时尚,在家装颜色搭配中一直是宠儿,不仅能让小空间更显开阔,还可以让人在烦嚣中感受白色的宁静。 

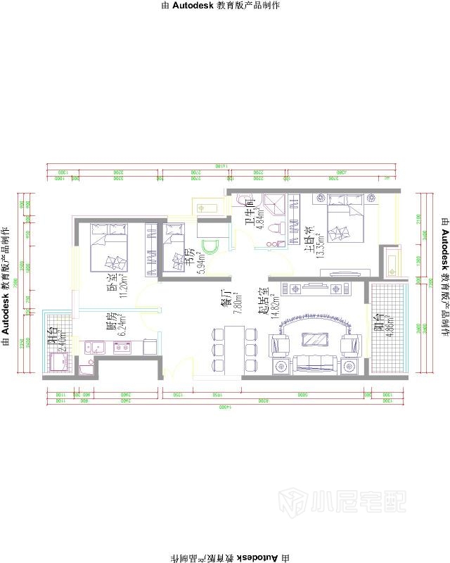
户型图

黑色描银边桌,绽放着自我的美丽。
一盆绿植,生机盎然。
拼花的瓷砖搭配造型的天花,简单大方。
放眼望去,整个客厅显得开阔明亮。
每个角落都充满无尽的奢华。
完美的弧度融入精细的雕花,将生活的感动化为细致的品味,慢慢鉴赏。

                               
岁月积淀,怀旧典范。
小尼凡尔赛宫橱柜,大气沉稳的设计,仿古的造型。尽享深厚的底蕴。
山东省-德州市
设计经验5 作品3
  • 美式
  • 简约
  • 混搭
  • 硬装设计
  • 软装配饰设计

免费申请设计

设计师上门服务全程免费,禁止以任何形式收取费用。

请输入验证码

验证码输入错误