德国工业4.0智造

  • 健康环保
  • 免费服务
  • 三年质保
  • 本地体验
首页 > 案例中心 > 欧式 > 浮光掠影

浮光掠影 4351

140㎡#三室两厅两卫#欧式

案例介绍
山东省 - 德州市 - 德城区 唐人中心

回归本质,为“人”、为“家”而装修。应是在有限的空间考虑个人的精神与情感因素多一些。是为人服务的,不是为装修而装修。以人为本,要根据家庭需要而考虑,要适合的需求特点而追求,出发点不能为了注重形式而背弃了生活本质。

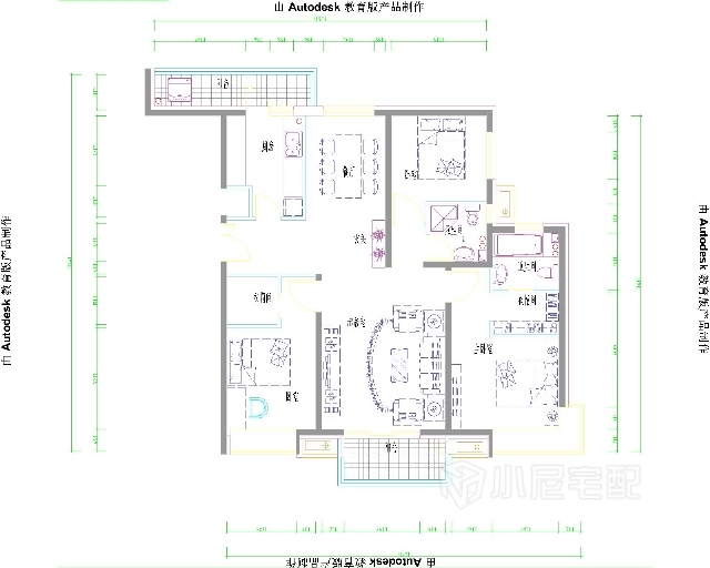
户型图

空间有着视觉上串联,原格局走道则纳入私人敞域加大整体主卧房及客房尺度。
立面与天际间佐以线板简单描绘,不失焦的状况下刻画出古典基底。
在空间的串联中自成多动线的美好端景。
家里的风格以白色为主,以银色和一些绿色盆栽作为装饰。
对称设计在视觉上易给人延伸的感觉
空间风格-考虑到屋主明亮宽敞要求,设计师以浅色系铺陈,呈现轻古典风貌。
卫浴内权释设计再次融入业主对素材的偏好,镜面与玻璃交织放大纵横向视觉。
厨房的大面积采光完美通风,收纳到位。
山东省-德州市
设计经验5 作品3
  • 美式
  • 简约
  • 混搭
  • 硬装设计
  • 软装配饰设计

免费申请设计

设计师上门服务全程免费,禁止以任何形式收取费用。

请输入验证码

验证码输入错误