德国工业4.0智造

  • 健康环保
  • 免费服务
  • 三年质保
  • 本地体验
首页 > 案例中心 > 混搭 > 色彩之家的魅力怒放

色彩之家的魅力怒放 3240

150㎡#三室两厅两卫#混搭

案例介绍
河北省 - 石家庄市 - 桥西区 碧水云天小区

设计师运用快乐的色彩、摩登的艺术品以及装饰艺术的不同手法,为崇尚前卫和自由的男女主人打造了一个充满梦想且气质不俗的家。
在配饰陈设上,设计师充分运用缜密而细腻的木,加上棉麻、绒布、皮质等各种材质的组合。整个空间不因家具的纯正深色感到压迫和沉重。铜制的艺术品、玻璃的摆件、陶瓷的瓶罐等,营造出深浅变化的剔透空间与生活品质。祥云的元素的融入将西方优雅与东方灵性相糅合,而极具时尚魅力的波普纹样组合,在情绪交错、花纹横陈的靡靡氛围中,生命也展露出妖冶的一面。

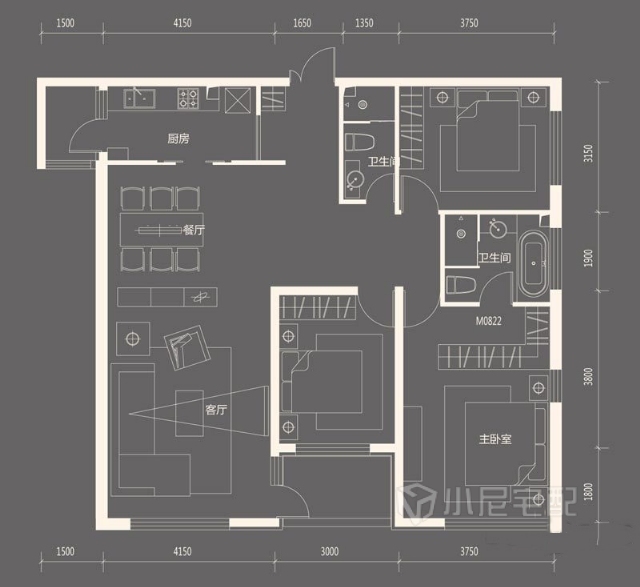
户型图

整个空间以淡米色为基调,显得悠扬而平和。明黄色与湖蓝色的碰撞让空间不再单调,应接不暇的繁花绿影好似春日里的色彩艳遇。
走进客厅,你会发现这里蕴含着各种高饱和度色彩的碰撞,而这些看似冲突的色彩,在空间里却又是如此的和谐。因为设计师通过主次分明的色彩配比关系来实现心情的旋律。
在配饰陈设上,设计师充分运用缜密而细腻的木,加上棉麻、绒布、皮质等各种材质的组合。整个空间不因家具的纯正深色感到压迫和沉重。铜制的艺术品、玻璃的摆件、陶瓷的瓶罐等,营造出深浅变化的剔透空间与生活品质。
整个空间不因家具的纯正深色感到压迫和沉重。铜制的艺术品、玻璃的摆件、陶瓷的瓶罐等,营造出深浅变化的剔透空间与生活品质。
家具追求平衡与朴素的规整美,因为卧室是休息的地方,所以外形需要传达一种平稳与和谐。床品选择丝质与花朵图案,折射出女性的气息。
在卧室设计中,设计师把色彩演绎得更加纯粹。不同的蓝以简约的造型凸显环境的干练和素雅。家具追求平衡与朴素的规整美,因为卧室是休息的地方,所以外形需要传达一种平稳与和谐。
家具追求平衡与朴素的规整美,因为卧室是休息的地方,所以外形需要传达一种平稳与和谐。
空间就是在这样的色彩和元素搭配中变得前卫而独特,拥有着一种不同寻常的魅力。简单的生活透着极致的浪漫与包容。在简洁的造型里体会到放松闲适的味道,在明快的色彩中感受着心情的愉悦。
324
河北省-唐山市
设计经验5 作品1
  • 现代
  • 田园
  • 地中海
  • 硬装设计
  • 软装配饰设计

免费申请设计

设计师上门服务全程免费,禁止以任何形式收取费用。

请输入验证码

验证码输入错误