案例介绍
河北省 - 唐山市 - 滦南县
上河城
欧式讲究华丽,浪漫温馨
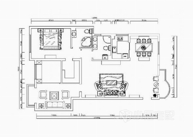
户型图

本案的设计灵感,源于对生活品质的追求,设计中巧妙的利用大理石的质感,穿插色彩,风格典雅稳重

本案设计风格为简欧风格,在注重装饰效果的同时,用简欧的表现手法和材质还原风格特点

使用简洁线条勾勒出空间信息,在欧式和现代的设计语言里寻找平衡矛盾与融合的交汇

阳台的造景与躺椅,适合周末与家人一起喝喝茶,晒晒太阳。

卧室床头的设计增加卧室的舒适性。

主卫玻璃浴房的设置,增加了一丝浪漫与时尚。

书房榻榻米的设置,给休闲娱乐增加了一个好去处。

小书房的设置是为了可以有一个清净的办公之处,定制书柜根据主人的喜好定做。满足家庭的需要。
免费申请设计
设计师上门服务全程免费,禁止以任何形式收取费用。