案例介绍
浙江省 - 绍兴市 - 诸暨市
诸暨万达广场
风格定位: 主题:百变空间-男女时代 颜色:白色 硬装:白色烤漆饰面板,西班牙米黄石材,拉丝不锈钢。仿西西里灰石材瓷砖。 人物描述: 男主:汽车品牌营销,美国留学归来,喜欢摄影。
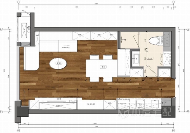
户型图

门厅干净整洁储物功能强大。

客厅皮质沙发,三种经典颜色搭配,彰显活力。

餐厅抽拉式餐桌满足多种客户要求。

卧室一键电动升降床,拓展屋内空间。

双卧室模式轻松搞定小户型居住问题。

卫生间简洁时尚实用

书房轻松完成各种写作、游戏的需要

厨房无拉手设计使厨房操作更安全、快捷、方便。
免费申请设计
设计师上门服务全程免费,禁止以任何形式收取费用。