德国工业4.0智造

  • 健康环保
  • 免费服务
  • 三年质保
  • 本地体验
首页 > 案例中心 > 美式 > 沉稳 大气

沉稳 大气 5047

350㎡#别墅#美式

案例介绍
河南省 - 郑州市 - 二七区 马渡

户型的主人是位在美国生活多年的商人,希望把自己的家充满复古的感觉,在本案例中为了凸显其贵气与端庄,在美式家具的油漆上,都以单色为主。

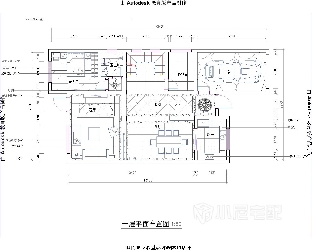
户型图

采用石材和木饰强调一种古旧的文化感
在入户门采用浮雕背景墙给一大气的感觉
在装修风格上展示着独特的浪漫情怀
美式的装修风格营造一个自由自在 随意的方式,在装饰没有太多的雕刻与约束
在装修设计的家居环境中采用统一的色系
在餐厅的装饰中用背景墙和鲜花作为点缀
卧室采用开放式 既有足够的活动空间又有自己的私人空间
地面上的台阶与吊顶相呼应,不经意间成就了一种安逸 休闲的环境
河南省-郑州市
设计经验4 作品3
  • 现代
  • 美式
  • 田园
  • 软装配饰设计
  • 产品陪购

免费申请设计

设计师上门服务全程免费,禁止以任何形式收取费用。

请输入验证码

验证码输入错误